Skiss Villa Frröjd

VILLA FRÖJD

En villa med smart funktion

Så fort man öppnar ytterdörren ser man genom huset och ut i trädgården. Huset är ljust och luftigt och kombinerar öppna ytor med många funktionella rum. Kök och samvaro ligger i vinkel, så att köket upplevs som ett eget rum samtidigt som man får ett öppet samband. Sovrummet på bottenplan kan inredas som en del av sällskapsytan. Dörren till groventrén nås direkt från bilplatsen.

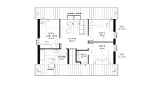
Planlösning

SNABBFAKTA

Typ: 1,5 plan

Antal rum: 5-6 rum och kök

Varav sovrum: 3-4 st

Byggnadsarea: 92,4 kvm

Total boarea: 139,5 kvm

Boarea Entréplan: 81,5 kvm

Boarea Överplan: 58 kvm

Takutformning: Sadeltak

Taklutning: 42,5°

Ladda ner produktblad Villa Fröjd