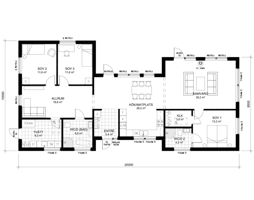
Från hallen kommer man direkt in i husets hjärta, köket. Kök och matplats är ett ljust utrymme med fönster från alla håll. Utanför matplatsen är en uteplats som är lättåtkomlig och skyddas för väder och vind av husets vinklar. Ett rymligt tvättrum med groventré kan nås direkt från bilplatsen. Alla sovrum är rymliga och i direkt anslutning till föräldrasovrummet finns en väl tilltagen klädkammare.

Typ: 1 plan
Antal rum: 5 rum och kök
Varav sovrum: 3 st
Byggnadsarea: 165,5 kvm
Boarea: 146,5 kvm
Takutformning: Sadeltak
Taklutning: 27°
